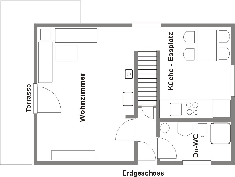
Haus und Gartenaufteilung